Mages (30960) 30960 LES MAGES PROCHE ALES
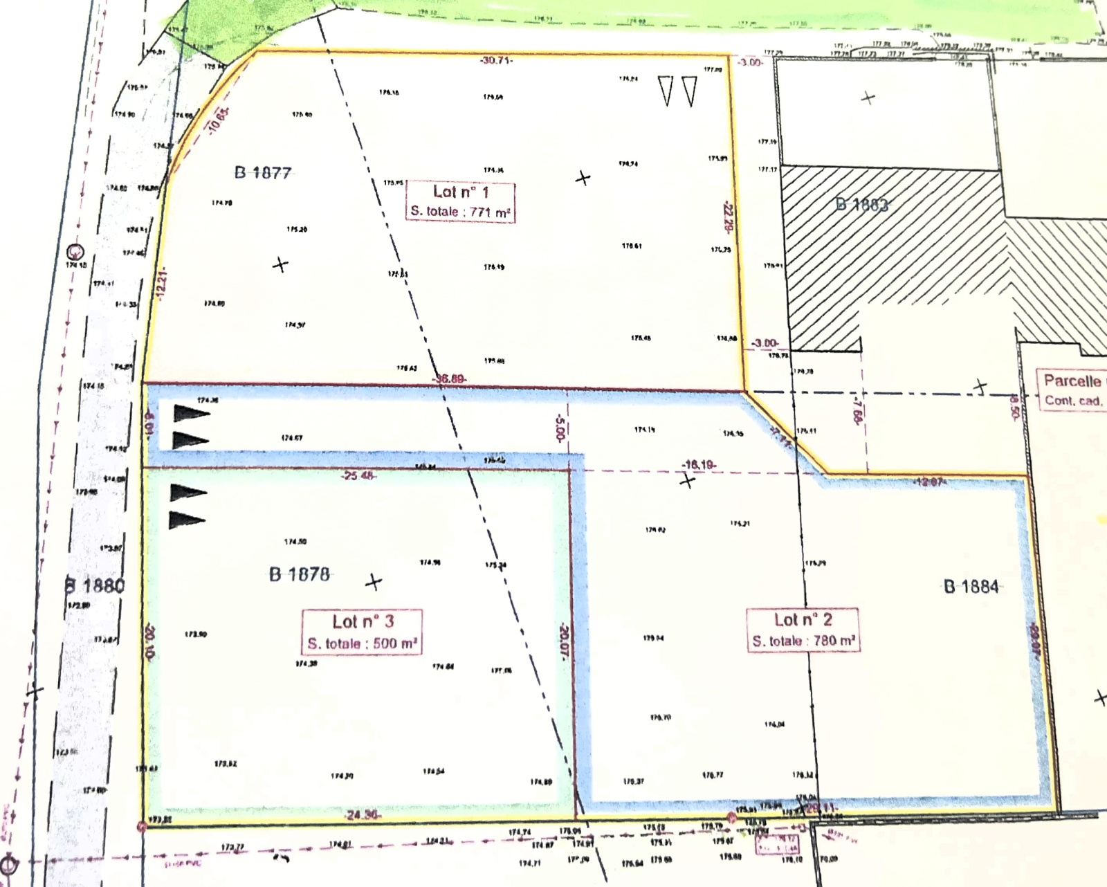
Magnifique terrain plat viabilisé de 771M² LOT 2 dans un endroit très calme, proche du centre des Mages avec tous commerces, supermarché, proche Alès, St Ambroix, les Fumades, l'avantage de ce terrain, il est soumis au RNU aucun règlement, pas d'emprise au sol imposé, vous pouvez adapter une villa de plain-pied ou étage clotueé sur deux côtés. A VISITER !!! Réf CCVTE420004484 Tarif 65000€ honoraires à la charge du vendeur compris. Contact Christine CARLIER 06 14 20 38 74 (agent commercial immatriculé au RSAC de Nîmes N°324023662) mail christine.negocehabitat@gmail.com Agence immobilière NÉGOCE HABITAT, 04 99 77 11 25, 117 Av du Mas de Sapte 34130 Saint-Aunès. CPI 3402 2017 000 017 628 délivrée par la CCI de l’Hérault, SARL AFCR au capital de 5000€, www.negoce-habitat.com. Non détention de fonds.Les informations sur les risques auxquels ce bien est exposé sont disponibles sur : www.georisques.gouv.fr
-
Commerces et santé
-
Loisirs
-
Ecoles
-
Transports
-
Pratique
Les informations recueillies sur ce formulaire sont enregistrées dans un fichier informatisé par La Boite Immo agissant comme Sous-traitant du traitement pour la gestion de la clientèle/prospects de l'Agence / du Réseau qui reste Responsable du Traitement de vos Données personnelles.
La base légale du traitement repose sur l'intérêt légitime de l'Agence / du Réseau.
Elles sont conservées jusqu'à demande de suppression et sont destinées à l'Agence / au Réseau.
Conformément à la loi « informatique et libertés », vous disposez des droits d’accès, de rectification, d’effacement, d’opposition, de limitation et de portabilité de vos données. Vous pouvez retirer votre consentement à tout moment en contactant directement l’Agence / Le Réseau.
Consultez le site https://cnil.fr/fr pour plus d’informations sur vos droits.
Si vous estimez, après avoir contacté l'Agence / le Réseau, que vos droits « Informatique et Libertés » ne sont pas respectés, vous pouvez adresser une réclamation à la CNIL.
Nous vous informons de l’existence de la liste d'opposition au démarchage téléphonique « Bloctel », sur laquelle vous pouvez vous inscrire ici : https://www.bloctel.gouv.fr
Dans le cadre de la protection des Données personnelles, nous vous invitons à ne pas inscrire de Données sensibles dans le champ de saisie libre.
Ce site est protégé par reCAPTCHA, les Politiques de Confidentialité et les Conditions d'Utilisation de Google s'appliquent.
